images
images
images
images
images
images
images
المميزات
  • الغرف: 6
  • الحمامات: 8
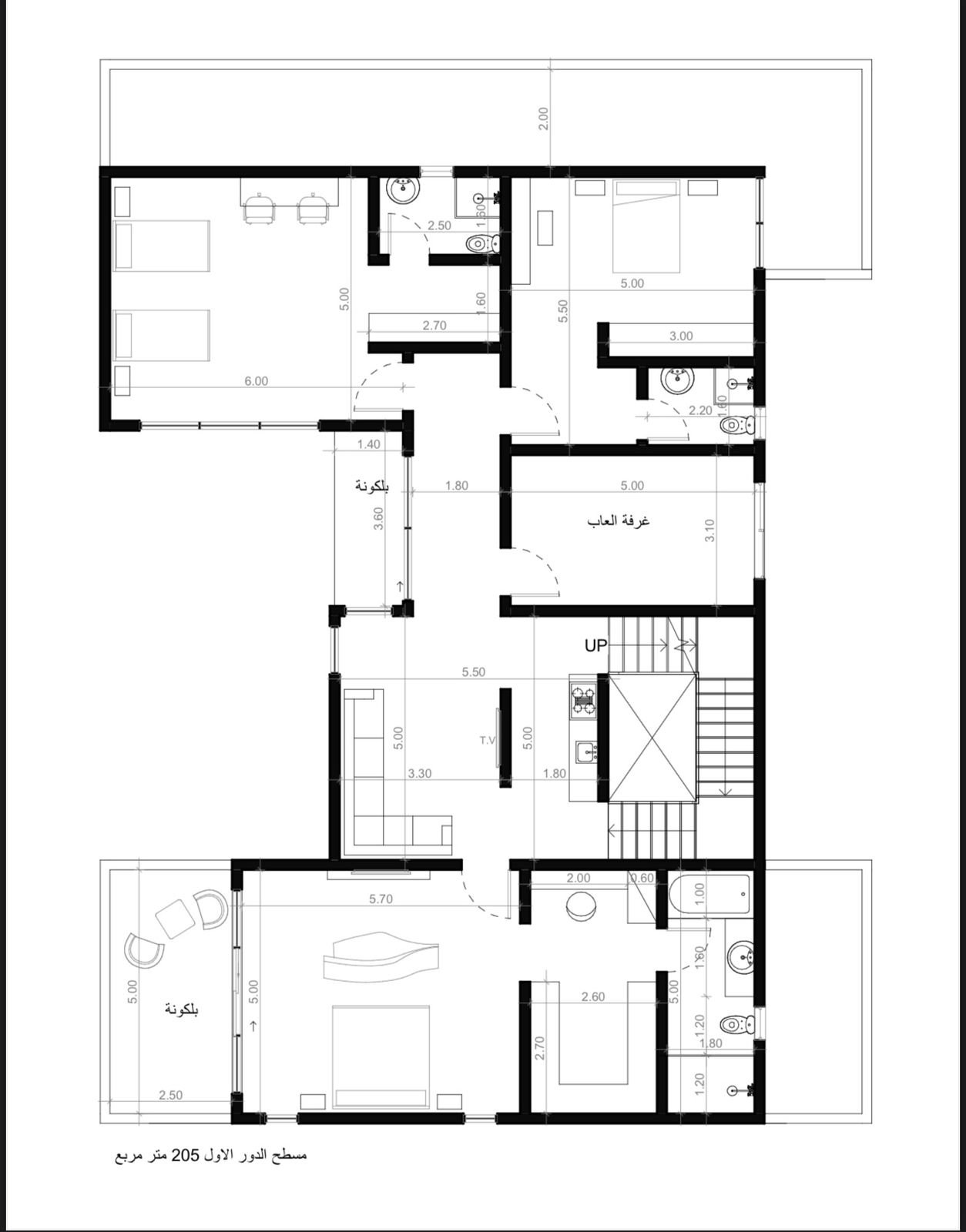
  • المساحة: 512.50 م²
الموقع

الجبيلة - الرياض

رخصة الإعلان

7200623676

نظرة عامة
  • المنطقة: الجبيلة
  • النوع: فيلا
  • المساحة: 512.50 م²
  • السعر يبدأ من: 2,400,000
  • التصنيف: فيلا
  • غرفة نوم: 6
  • مطبخ: 1
  • دورة مياه: 8
  • غرفة ماستر: 4
  • غرفة الخادمة: 1
  • صالة: 2
  • مجلس: 2
  • صالة طعام (مقلط): 1
التفاصييل

نوع العقار : فيلا عظم مليسه جاهزة للتشطيبات النهائية حي العقار : الجبيلة ( عقرباء ) مساحة العقار : 512.5 م واجهة العقار : شرقي عمر العقار : جديد عرض الشارع : 20 م تفاصيل العقار : فيلا درج داخلي عبارة عن غرفة كبار سن ومجلس نساء ورجال وصالة ومشب ومطبخ معه مخزن مع غرفة عامله و 3 غرف نوم بالدور الاول من ضمنها غرفة ماستر كبيرة ، والسطح غرفتين بدورة مياه مشتركة وجلسه خارجية . مميزات العقار : بناء شخصي اشراف هندسي ضمانات سباكة وكهرب تصوير مراحل البناء كامله سعر العقار : 2,400,000 للاستفسار والتواصل على الأرقام التالية : 0590213199 920014516

المميزات
  • موقع استراتيجي
    موقع استراتيجي
  • كهرباء
    كهرباء
الوحدات المتاحة
1
  • غرفة نوم: 6
  • دورة مياه: 8
  • المساحة: 512.50 م²
  • نوع الوحدة: villa
  • مطبخ: 1
  • صالة طعام (مقلط): 1
  • غرفة ماستر: 4
  • غرفة الخادمة: 1
  • صالة: 2
  • مجلس: 2
  • السعر: 2,400,000 SAR
  • الحالة: متاح
الضمانات
  • عزل مائي
    عزل مائي 10 سنوات
  • كهرباء
    كهرباء 25 سنوات
  • السباكة
    السباكة 15 سنوات

موقع العقار

الرياض - الجبيلة

اذهب إلى الموقع
خلفية الخريطة
مطور العقار
بناء شخصي
بناء شخصي
طلب حجز وحدة
لماذا تختارنا؟
  • ضمان أفضل سعر
  • عملية شراء سهلة
  • خدمة عملاء مميزة
شركة المعالم الأولى المحدودة
يامرحبا لخدمتك بشكل أفضل يرجى تزويدنا برقم الجوال الخاص بك.
شركة المعالم الأولى المحدودة
يا مرحبا لخدمتك بشكل أفضل يرجى اختيار الوحدة وتزويدنا برقم الجوال الخاص بك.